空降24小时服务免费微信_全国24小时品茶QQ_全国附近空降快餐24小时_全国24小时空降600家服务

全站搜索

一体化预制泵站一体化预制泵站
一体化预制泵站一体化预制泵站
一体化预制泵站厂家一体化预制泵站
一体化预制泵站厂家哪家好一体化预制泵站

一体化预制泵站

污水处理设备 642
  • 售价联系客服免费获取产品报价
  • 品牌赛墨
  • 井盖镀锌/压花铝合金
  • 液压控制系统水滴型液位开关
  • 潜污泵赛墨排污泵(可选)
  • 筒体和底座GRP缠绕式强化玻璃钢
  • 阀门HT200
产品简介

适用范围

广泛应用于生活小区或农村社区污水的收集与输送;城镇污水处理厂污水的收集与输送;城区低洼地区雨水的收集与输送;污水管网的建设与改造;老泵站的改造与扩建;湖泊的水体循环等

产品特点:

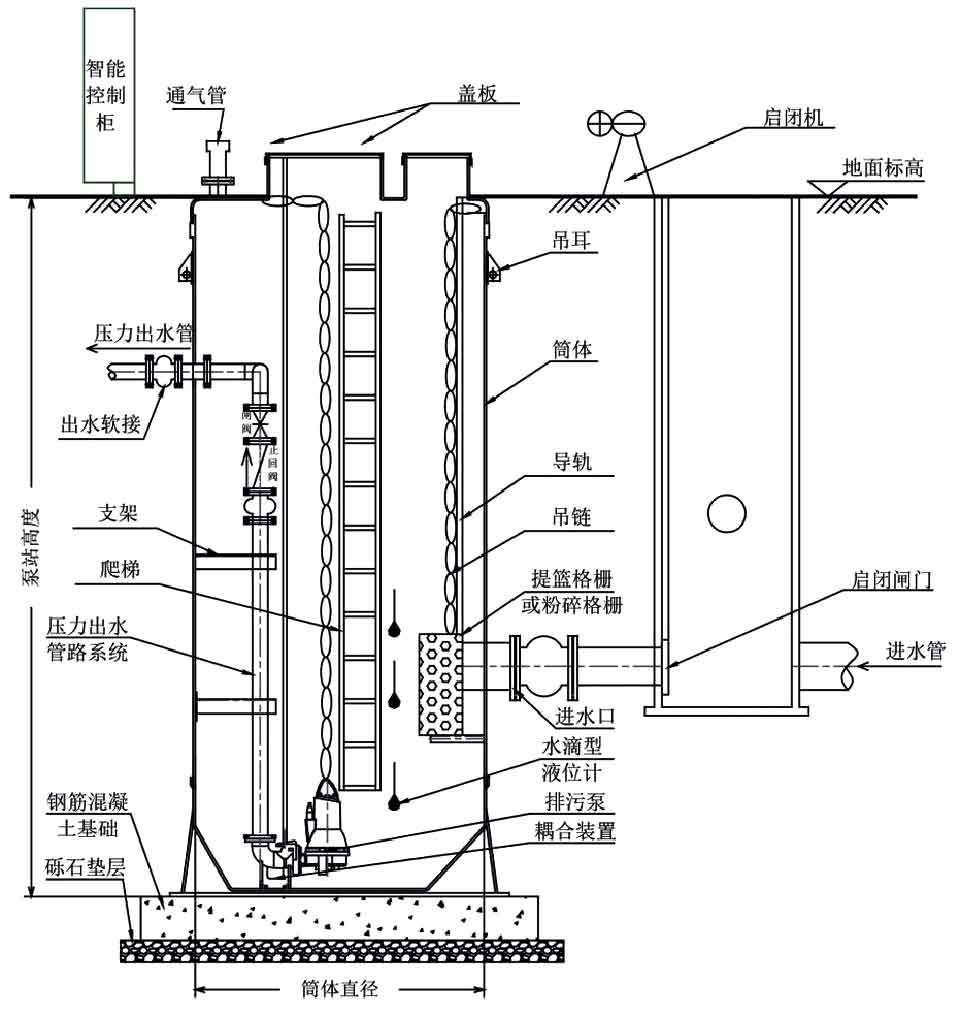
结构示意图:

泵的选型-性能曲线图谱
一体化预制泵站结构示意图
预制泵井结构示意图

选型参数表:

型号泵井直径(mm)泵站高度(mm)排水量(m3/h)扬程(m)水泵台数功率
MOPPS-XX-II-12-XX-T12002-165.3-714.3-16.62台(一用一备)
MOPPS-XX-II-20-XX-T20002-16107-3595.7-312台(一用一备)
MOPPS-XX-II-26-XX-T26002-16133-6014.1-472台(一用一备)根据实际流量、扬程从性能曲线图谱选取
MOPPS-XX-II-30-XX-T30002-16980-15064.1-493台(两用一备)或咨询上海赛墨厂家技术工程师
MOPPS-XX-II-42-XX-T42002-161300-50008.2-20.33台(两用一备/三用)
MOPPS-XX-II-42-XX-T42002-163000-85008.2-20.34台(三用一备/四用)

产品实拍:

一体化预制泵站
一体化预制泵站公司
一体化预制泵站厂家
一体化预制泵站价格

施工步骤:

服务承诺:

设立完善的服务体系,为客户提供尽善尽美的售前、售中、售后服务

下一篇:

相关推荐

  • 污水提升设备厂家如何选 污水提升设备的价格

    306

    在大楼地下室建卫生间是在过程设计中常会遇见的情况。这时,在卫生间内无论卫生间洁具设置多少,通常的做法有两种:一种方法是在地下室地面下设一个集水坑将卫生洁具的污水收集到一起后,用潜污泵提升排至室外地下式污水泵井

    查看全文
  • 安装一体化提升污水设备要注意些什么呢?

    402

    对于未施工项目,有一体化提升污水设备时,需要根据使用位置,分区域复核卫生间污水排放量,建议按照大型活动期间尤其是室外广场活动期间瞬间大流量时,考虑接近出入口部位卫生间的污水排放量,校核污水提升设备参数 首先计算出排污泵将水箱中有效体积的污水抽完...

    查看全文
  • 一体化污水处理设备

    665

    上海赛墨一体化污水处理设备主要用于村镇污水处理站,设备采用碳钢材质,做防腐处理,全套设备可以埋地下,也可以放地上。采用国际先进的生物法处理工艺,去除BOD5、COD、NH3-N,技术性能可靠,处理效果好、投资省、占地少、维护便捷。一体化污水处理设备,生活污水处...

    查看全文
  • 污染物瞬时超标究竟该不该处罚

    322

    相信不少人可能关注到了,日前在宜昌一家法院依法审理了一起矿业公司超标排污行政处罚案,二审下来的结果是维持原判。表明该公司的确存在排放水污染物浓度超标问题,将对其就该问题处以22万元的行政处罚。

    查看全文
展开更多
咨询产品列表
咨询产品列表 提交咨询以上产品
主站蜘蛛池模板: 横山县| 万宁市| 泉州市| 两当县| 乌拉特后旗| 光山县| 聊城市| 兴安盟| 青河县| 建始县| 鄂伦春自治旗| 武陟县| 松潘县| 铜梁县| 博湖县| 晋城| 墨江| 陈巴尔虎旗| 上高县| 泉州市| 福建省| 乾安县| 六盘水市| 奎屯市| 都江堰市| 灵寿县| 改则县| 承德县| 宁武县| 聂拉木县| 新建县| 汶川县| 邻水| 绥滨县| 梅河口市| 临漳县| 南昌市| 中超| 南平市| 南充市| 图木舒克市|